0668177171
HEROUVILLE IMMOBILIER - 34 Avenue de la Grande Cavée 14200 Hérouville-Saint-Clair

Maison de famille à "RIVA BELLA" proximité plage.


< Retour

Partager sur

gallery loader
Exclusivité Prix en baisse

Maison 123 m² - Ouistreham 399 000


Description de l'offre Ref BAT


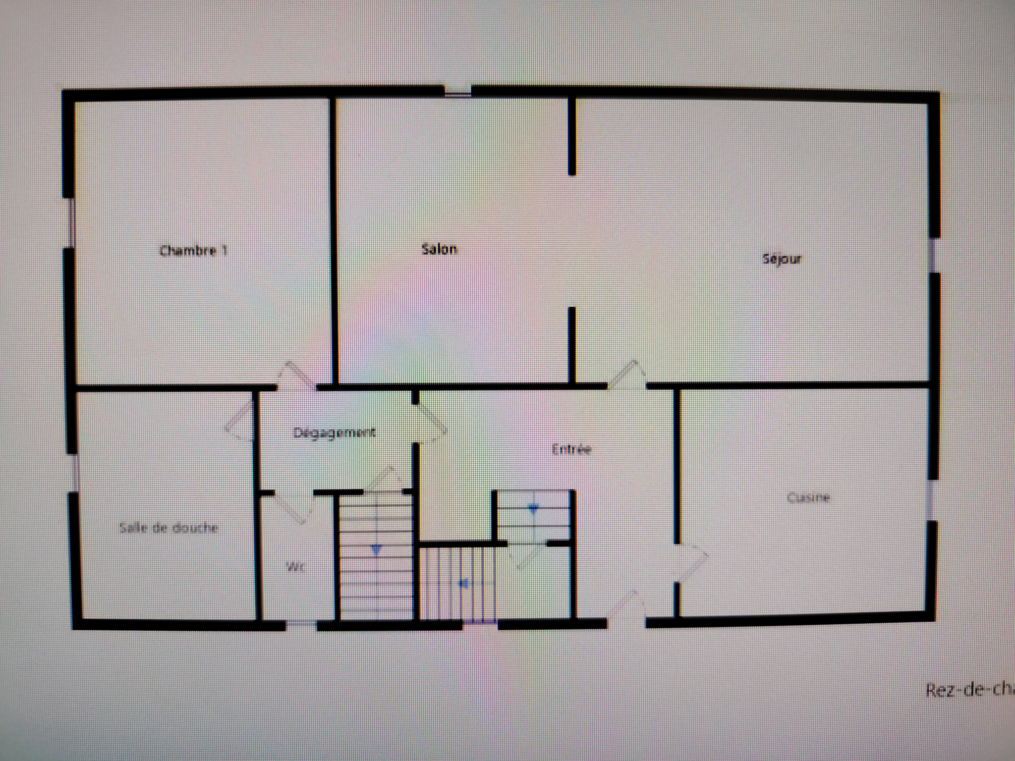
EXCLUSIVITÉ – HEROUVILLE IMMOBILIER À seulement 400 mètres à pied de la plage, découvrez cette maison indépendante d’environ 123 m², édifiée sur un sous-sol intégral, le tout sur une parcelle de 469 m² exposée plein SUD. Description du bien : Au rez-de-chaussée : Une entrée Une cuisine fermée (possibilité d’ouverture sur la pièce de vie) Un séjour-salon lumineux Une chambre Une salle de bain Un WC indépendant À l’étage : Deux grandes chambres Un bureau Des espaces supplémentaires à exploiter (création de dressings ou rangements) Au sous-sol : Un espace permettant de stationner un véhicule Plusieurs volumes annexes (atelier, stockage, etc.) Possibilité d’aménagement avec accès indépendant Extérieurs : Jardin offrant un beau potentiel d’aménagement,exposition SUD, à valoriser selon vos envies. Informations complémentaires : Travaux de rafraîchissement à prévoir Maison saine avec bonne base structurelle Menuiseries en PVC double vitrage Volets roulants électriques Une belle opportunité à proximité immédiate de la mer, idéale en résidence principale ou secondaire ! Contact : Dossier suivi par M. DUMEIGE Yohann Agent commercial immatriculé au RSAC de Caen n° 890 256 142 Tél : 06 41 15 50 89 Les informations sur les risques auxquels ce bien est exposé sont disponibles sur le site Géorisques

Diagnostics de performance énergétique


DPE
DPE

Montant estimé des dépenses annuelles d'énergie pour un usage standard est compris entre 3 110 € et 4 250 € . Prix moyens des énergies indexés sur les années 2021, 2022 et 2023 (abonnements compris).

Descriptif du bien


Code postal 14150


Surface habitable (m²) 123 m²


surface terrain 469 m²


Nombre de chambre(s) 3


Nombre de niveaux 2


Nb de salle de bains 1


Cuisine SEPAREE


Type de cuisine SEMI-EQUIPEE


Mode de chauffage Gaz de ville


Type de chauffage TRAD_TYPE_CHAUFF_CHAUDIERE


Format de chauffage Individuel


Terrasse NON


Nombre de garage 1


Exposition SUD-OUEST


Année de construction 1955


Prix de vente honoraires TTC inclus 399 000 €


Prix de vente honoraires TTC exclus 376 000 €


Honoraires TTC à la charge acquéreur 6,12 %


Taxe foncière annuelle 2 738 €


Cette annonce vous intéresse ?


* Champs obligatoires

* : Les informations recueillies sur ce formulaire sont enregistrées dans un fichier informatisé par La Boite Immo agissant comme Sous-traitant du traitement pour la gestion de la clientèle/prospects de l'Agence / du Réseau qui reste Responsable du Traitement de vos Données personnelles. La base légale du traitement repose sur l'intérêt légitime de l'Agence / du Réseau. Elles sont conservées jusqu'à demande de suppression et sont destinées à l'Agence / au Réseau. Conformément à la loi « informatique et libertés », vous disposez des droits d’accès, de rectification, d’effacement, d’opposition, de limitation et de portabilité de vos données. Vous pouvez retirer votre consentement à tout moment en contactant directement l’Agence / Le Réseau. Consultez le site https://cnil.fr/fr pour plus d’informations sur vos droits. Si vous estimez, après avoir contacté l'Agence / le Réseau, que vos droits « Informatique et Libertés » ne sont pas respectés, vous pouvez adresser une réclamation à la CNIL. Nous vous informons de l’existence de la liste d'opposition au démarchage téléphonique « Bloctel », sur laquelle vous pouvez vous inscrire ici : https://www.bloctel.gouv.fr Dans le cadre de la protection des Données personnelles, nous vous invitons à ne pas inscrire de Données sensibles dans le champ de saisie libre.
Ce site est protégé par reCAPTCHA, les Politiques de Confidentialité et les Conditions d'Utilisation de Google s'appliquent.

autres annonces immobilières correspondant à votre recherche

Les biens similaires pour : Vente Maison Ouistreham (14150)